环艺2024-1、2班级CAD优秀作业汇报展
204-2025学年的第2学期,环艺2024级的1、2两个班级的同学,学习了《建筑CAD制图》课程。
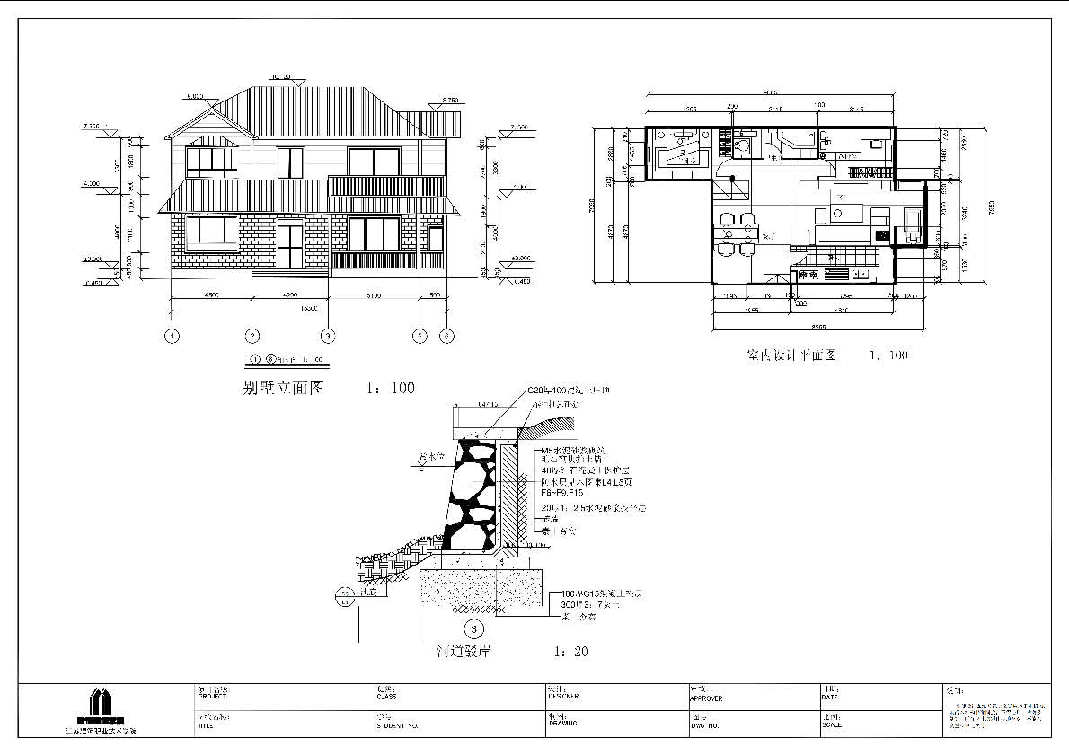
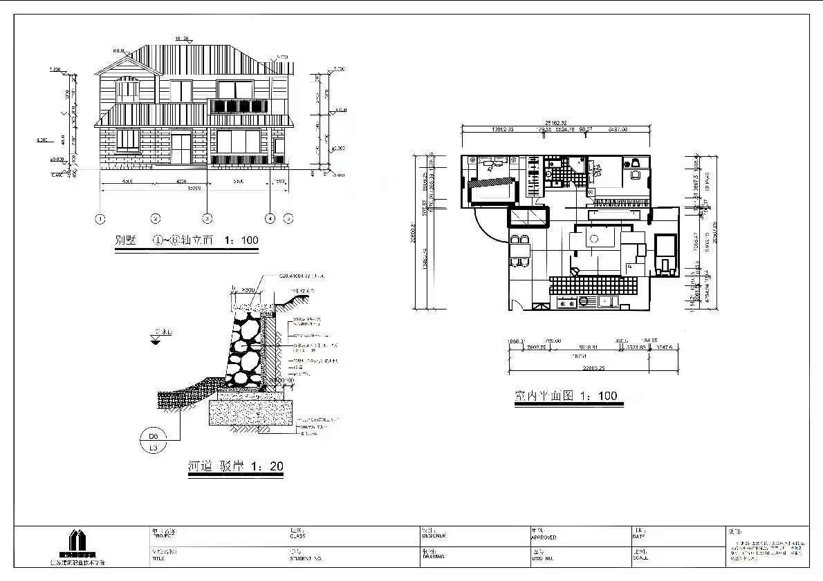
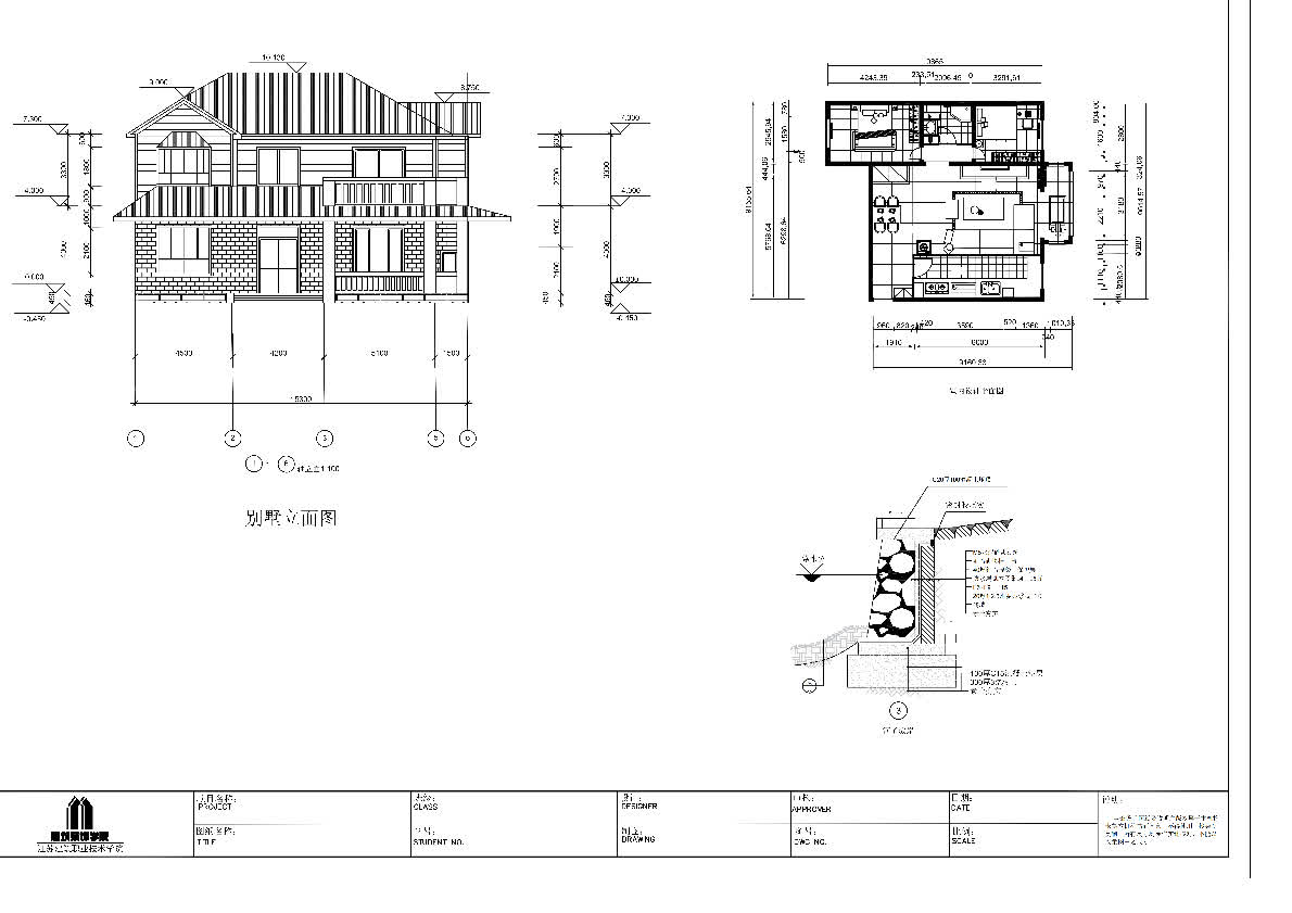
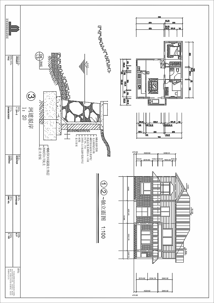
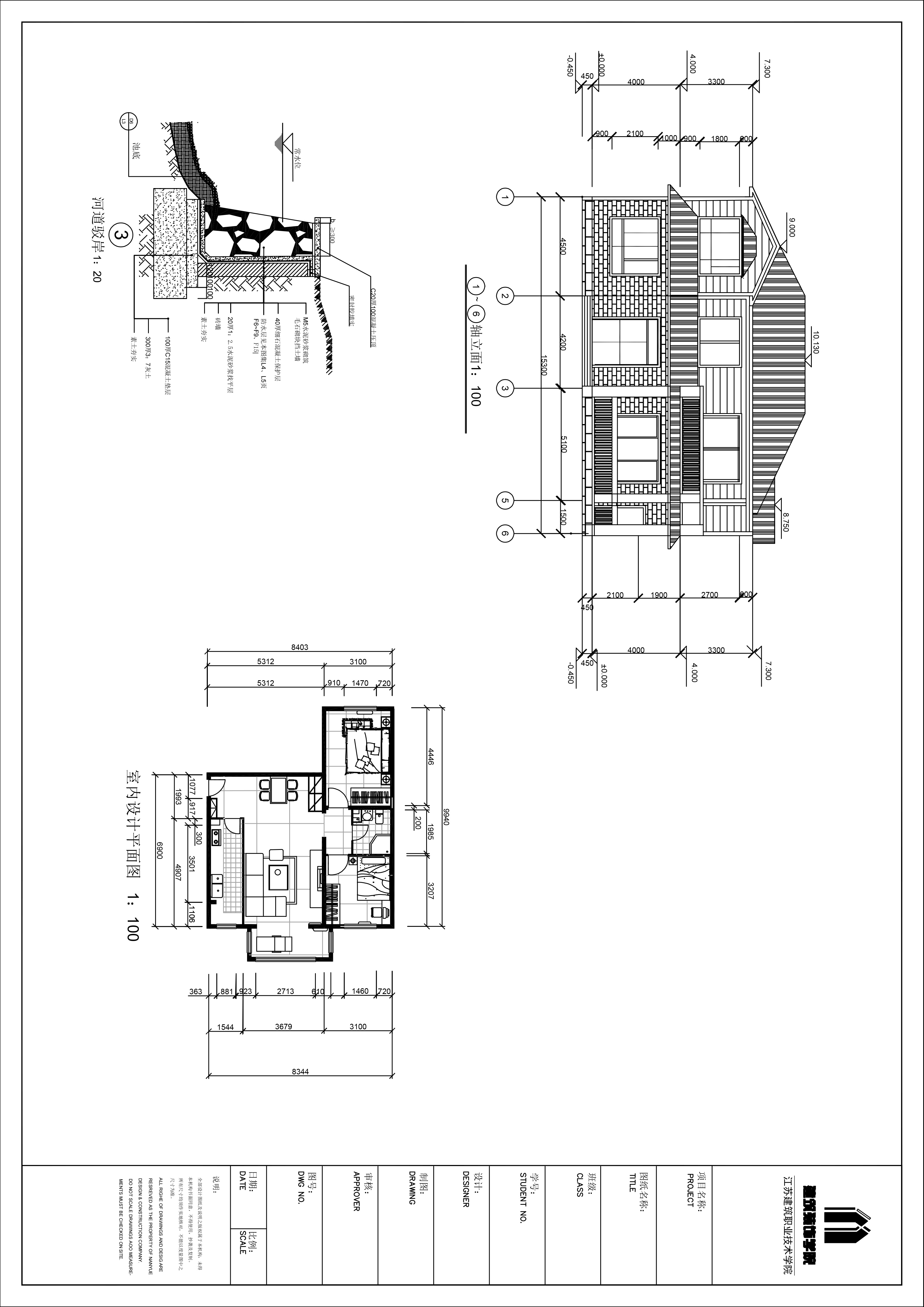
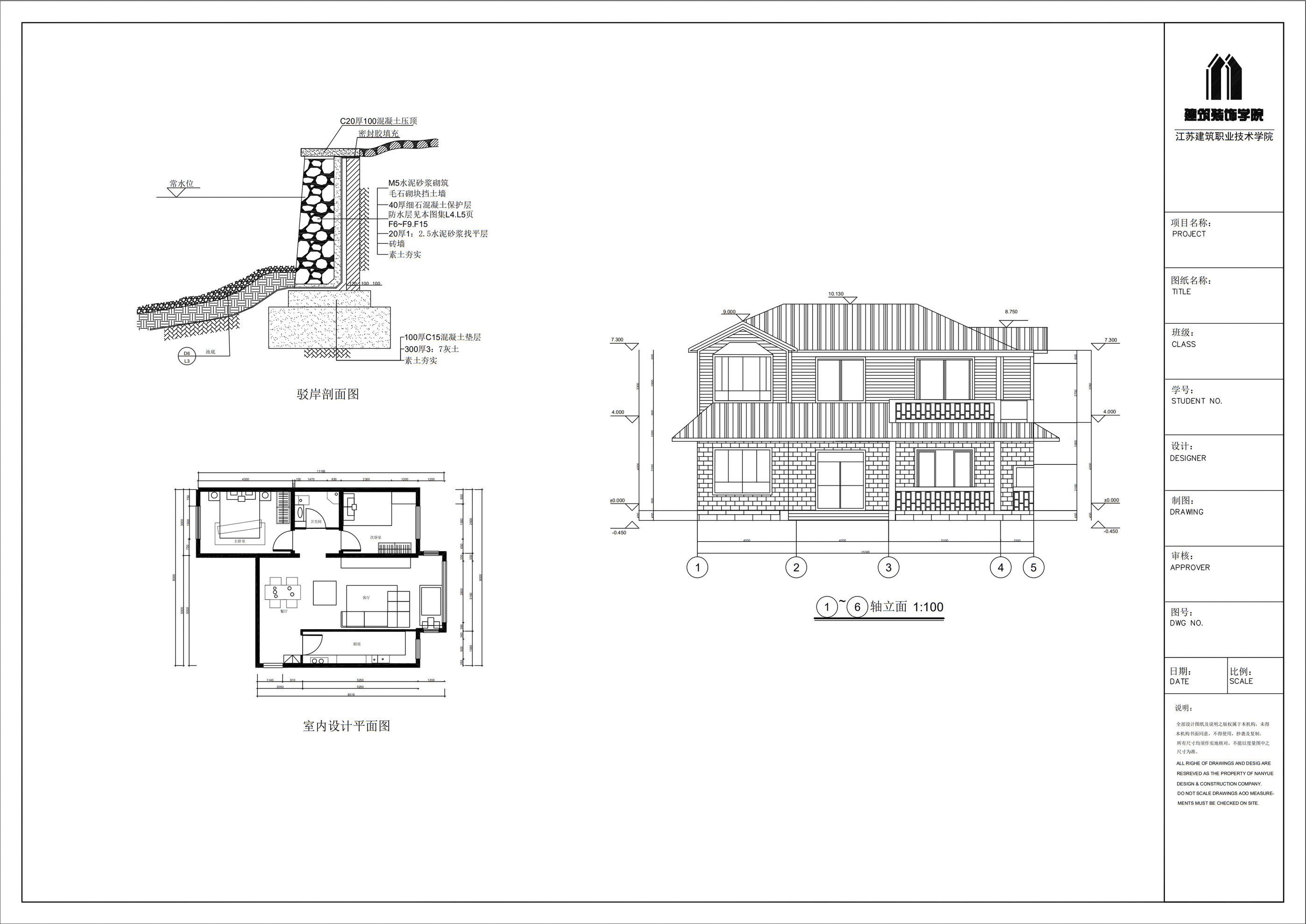
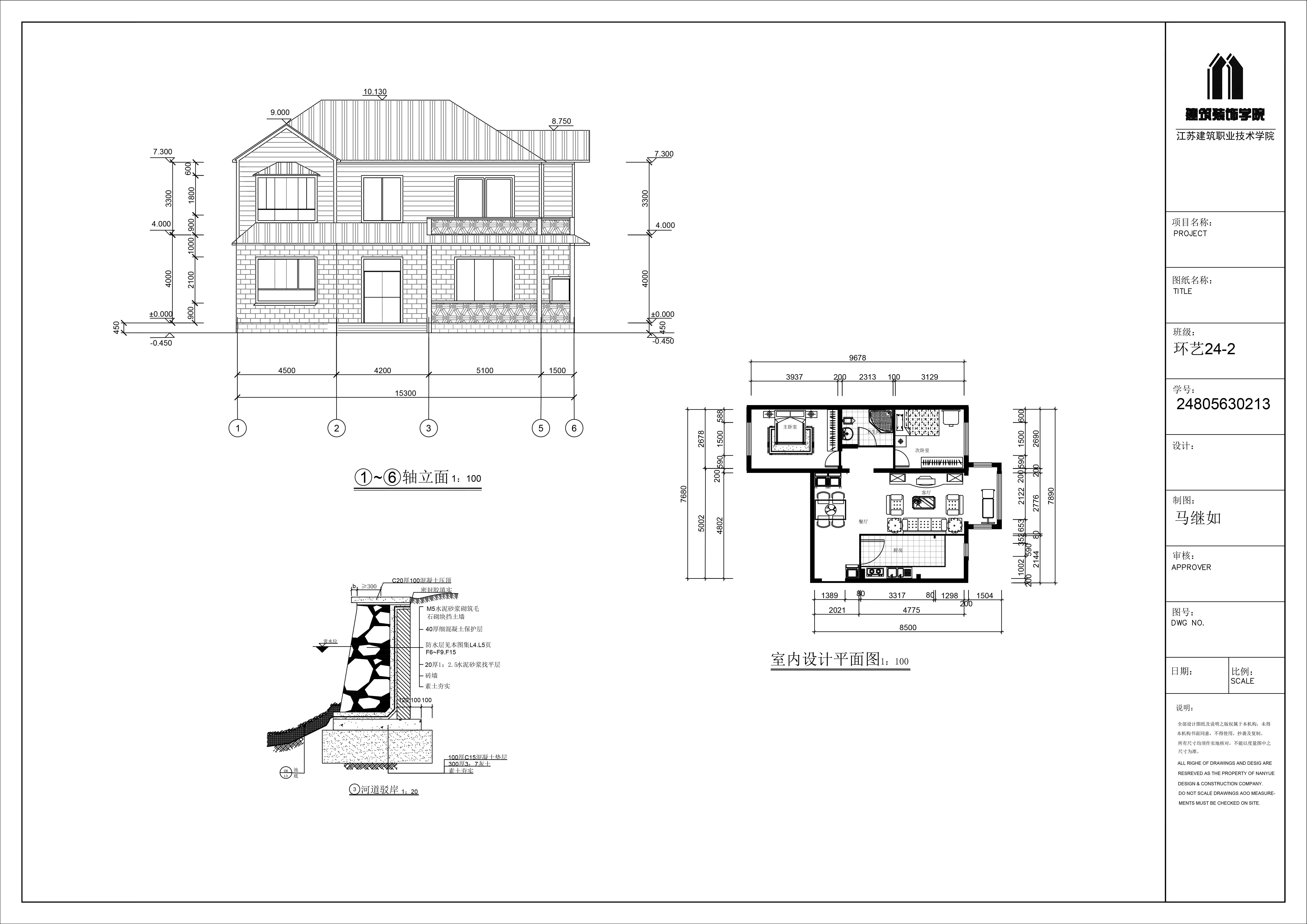
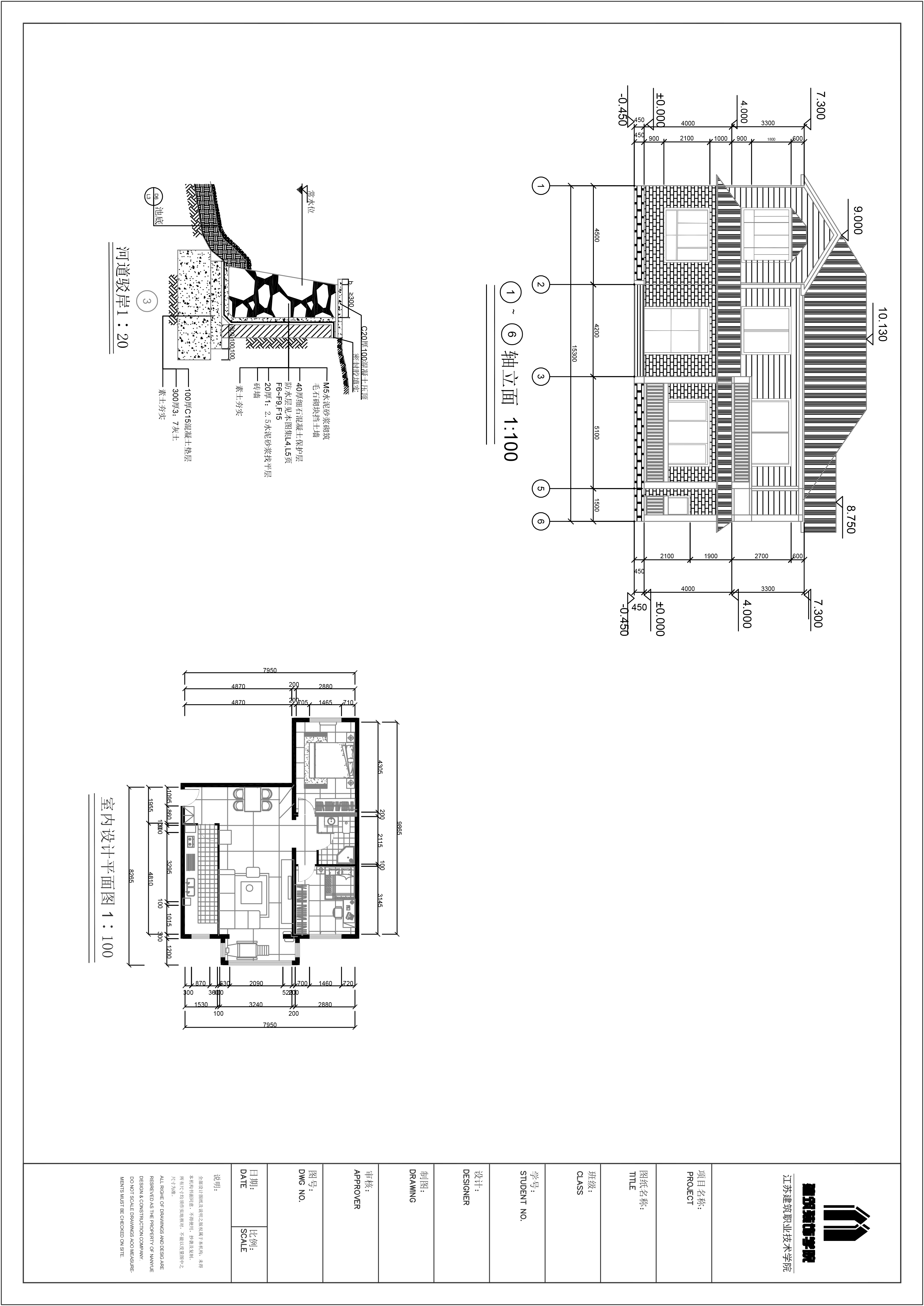
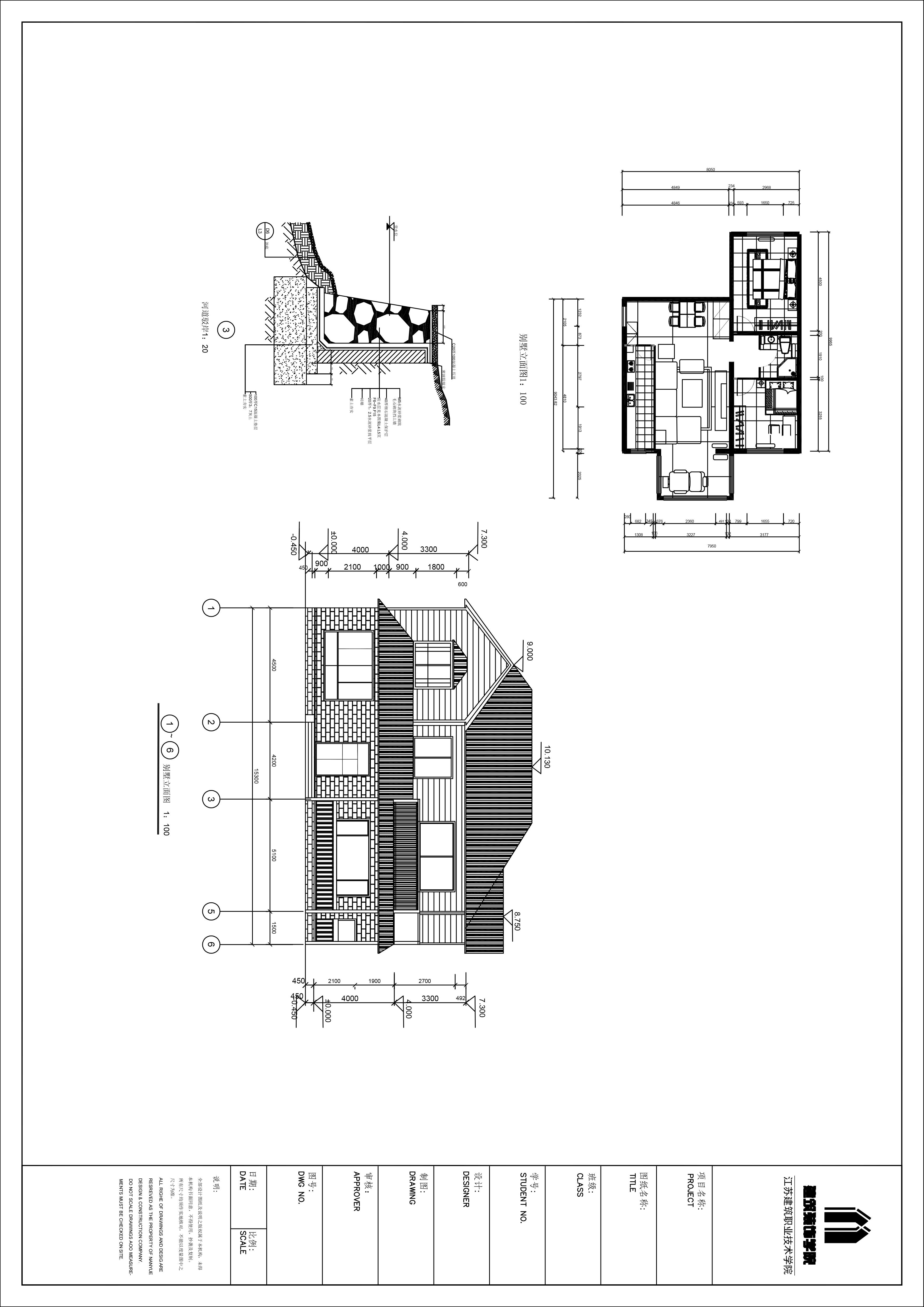
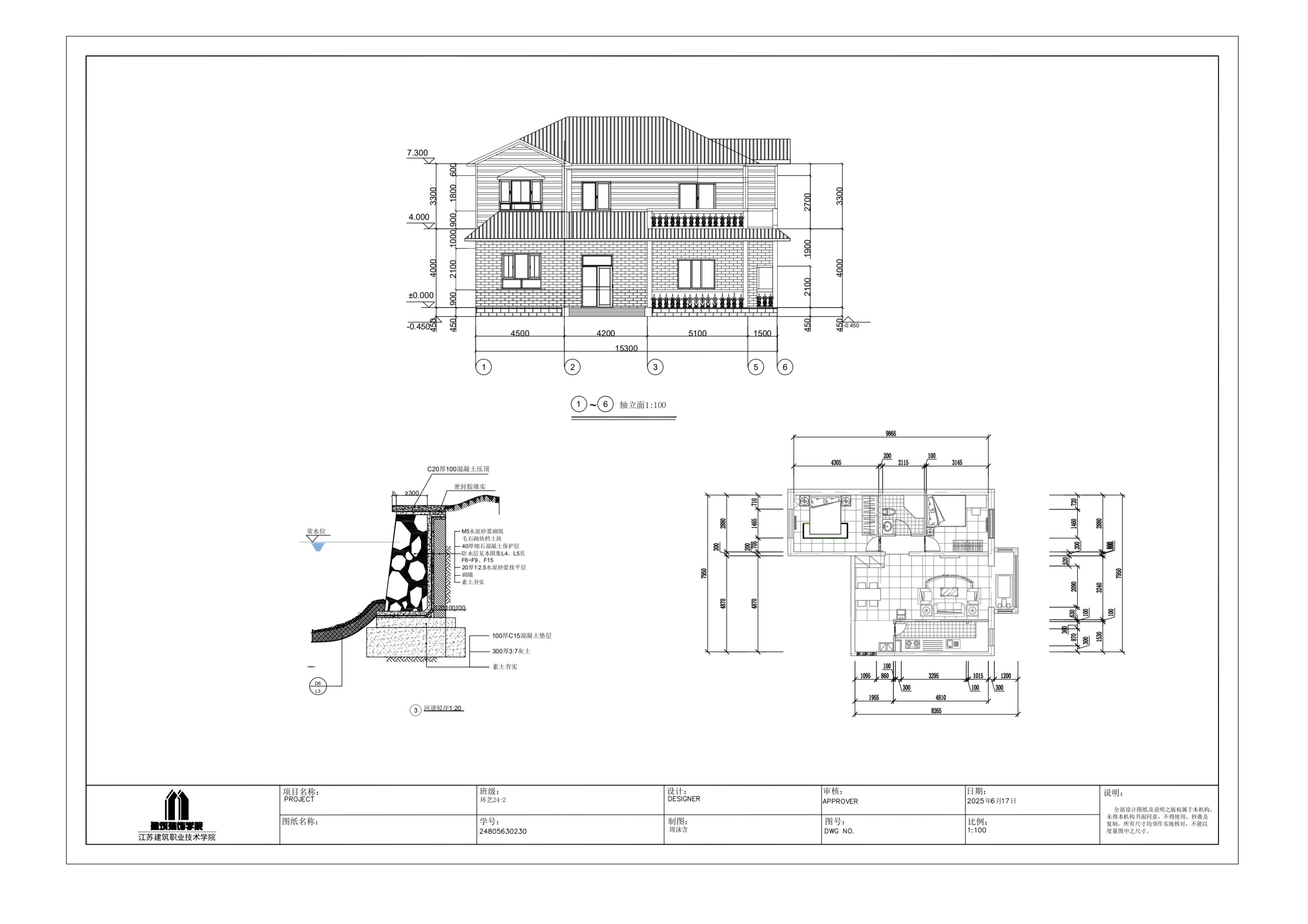
结合环艺专业及该课程的培养目标,我作为授课教师带领员工进行了相应的实训。在这个过程中,员工掌握了基本的CAD应用技术,做到了流畅的应用。而且,作为大一的新生,在没有太多设计基础的前提下,他们愿意挑战有一定难度的图纸。比如,实训项目之“河道驳岸剖面详图”,和“彩霞广场平面”,不仅涉及大量的CAD命令与技巧,还涉及到对技巧的举一反三;同时涉及到对复杂图纸的理解,与绘制流程步骤的理解等。
同学们的勇气和耐心,让我感觉欣慰。当然,作为教师,我也应当继续优化课程设计与实训项目,以更好的服务课程与专业的目标。希望各位领导教师,能够对我的课程提出意见和建议;也希望同学们多与我反馈,以帮助我进一步提升教学实训效果。
























编辑:杨倩
审核:王峰


